シンプルモダンなオシャレな部屋になりました! : HARA建築工房 (広島市安佐北区)のリフォーム事例

リノベーション(スケルトン・全面リフォーム)リフォーム 洋室(寝室・子供部屋) HARA建築工房

リフォーム箇所:洋室(寝室・子供部屋)

シンプルモダンなオシャレな部屋になりました!

HARA建築工房

リノベーション(スケルトン・全面リフォーム)

リフォーム目的
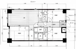
コメント 中古マンションを購入しての大規模リフォームです。3LDKだった間取りを2LDKに変更しました。
コストを抑えつつも、水まわりなどは全て取り替え、建具も紫色などオシャレで個性的に仕上がりました。
キッチンもガスからIHへ、オール電化住宅にしました。また収納にもこだわり、色々な箇所でたっぷり収納ができるように工夫しました。トイレもシックに仕上げ、部屋全体がシンプルモダンの印象になりました。
採用した工法など
デザインの雰囲気
重視したポイント

After

  • リノベーション(スケルトン・全面リフォーム)リフォーム キッチン・台所 HARA建築工房

    リフォーム箇所:キッチン・台所

  • リノベーション(スケルトン・全面リフォーム)リフォーム リビング HARA建築工房

    リフォーム箇所:リビング

  • リノベーション(スケルトン・全面リフォーム)リフォーム HARA建築工房
  • リノベーション(スケルトン・全面リフォーム)リフォーム 洋室(寝室・子供部屋) HARA建築工房

    リフォーム箇所:洋室(寝室・子供部屋)

  • リノベーション(スケルトン・全面リフォーム)リフォーム HARA建築工房
  • リノベーション(スケルトン・全面リフォーム)リフォーム HARA建築工房
  • リノベーション(スケルトン・全面リフォーム)リフォーム キッチン・台所 HARA建築工房

    リフォーム箇所:キッチン・台所

  • リノベーション(スケルトン・全面リフォーム)リフォーム HARA建築工房
  • リノベーション(スケルトン・全面リフォーム)リフォーム HARA建築工房
  • リノベーション(スケルトン・全面リフォーム)リフォーム HARA建築工房
  • リノベーション(スケルトン・全面リフォーム)リフォーム トイレ HARA建築工房

    リフォーム箇所:トイレ

Before

リフォーム情報

リフォームした建物の場所 広島県 広島市安佐北区
建物タイプ 集合住宅(アパート・マンション)
リフォーム種類 リノベーション(スケルトン・全面リフォーム)
リフォーム箇所・内容
リフォームにかかった工期 ~1か月
リフォーム総費用 3,000,000円